MÆRE KINDERGARTEN
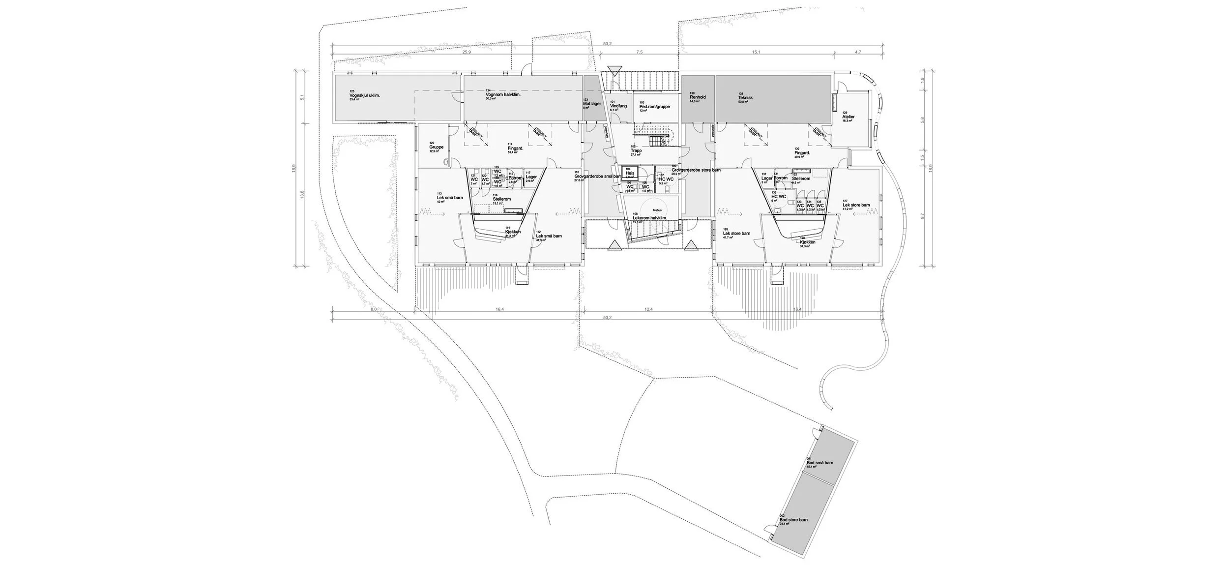
INCUBE in collaboration with Praksis Arkitekter AS and Skanska was selected as one of three groups after the pre-qualification competition for a new kindergarten and primary school at Mære in Trøndelag. The school and kindergarten, together with the existing sports facility and community center, will be the village’s most important meeting place. The proposal emphasizes proximity between the buildings in order to form a central meeting point towards an access square. On the opposite side of the buildings, the facilities open up with its play areas facing nature with woods and meadows.
TYPE
Kindergarten
LOCATION
Trondelag, Norway
CLIENT
Mære commune
STATUS
Competition 2019
